<-- Umami Analytics --> X: https://innogeo.at/
Zur Startseite

Suche

✔ Erlauben ✘ Verbieten
✔ Erlauben ✘ Verbieten
Home Umwelttechnik Oberflächenentwässerung

Oberflächenentwässerung

Wir erstellen individuelle Konzepte für Einfamilienhäuser als auch für ganze Bebauungsgebiete. Des Weiteren erarbeiten wir Sanierungskonzepte für nicht funktionierende Entwässerungssysteme.

Neben Entwässerungskonzepten (z.B. im Zuge von Bauverfahren) erstellen wir – falls es die konkrete Situation erfordert – auch Einreichprojekte zur Erlangung der wasserrechtlichen Bewilligung.

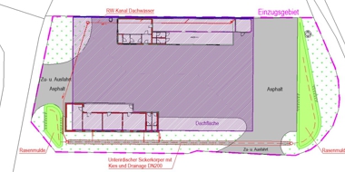
Als erstes stellt sich die Frage der Sickerfähigkeit des Untergrunds. Bei unzureichender Kenntnis der Sickerfähigkeit ist gegebenenfalls ein entsprechendes Bodengutachten erforderlich. Ist der Untergrund ausreichend sickerfähig, sind die Oberflächenwässer auf eigenem Grund zu versickern. Ist jedoch die Sickerfähigkeit zu gering, müssen die Wässer zwangsweise in den nahe gelegenen Regenwasserkanal, Entwässerungsgraben oder Bach - jedoch retentiert - abgeleitet werden.

Bei der Verbringung der Oberflächenwässer ist in weiterer Folge zwischen verunreinigten Wässern (z.B. Straßenwässer) und nicht/kaum verunreinigten Wässern (z.B. Dachwässer) zu unterscheiden. Verunreinigte Wässer bedürfen einer entsprechenden Reinigung (z.B. Bodenfilter, technischer Filter, etc.).

Bei ausreichender Sickerfähigkeit bieten sich einfache Sickerschächte, unterirdische Sickerkörper, Bodenfiltermulden (Rasenmulden) und Sickerbecken vor etwaigen Speziallösungen an. Bei dichtem Untergrund können Pufferschächte (z.B. in Verbindung mit einer Brauchwasserzisterne), Stauraumkanäle oder Pufferbecken zur Abflussretention errichtet werden.

INNOGEO INGENIEURBÜRO GmbH
Beratende Ingenieure für Vermessungswesen & Geoinformation
8423 St. Veit am Vogau
Schulstraße 16
Austria

INNOGEO ZIVILTECHNIKER GmbH
8423 St. Veit am Vogau,
Schulstraße 16
8042 Graz,
St.-Peter-Gürtel 12a

©2026 INNOGEO GmbH / Impressum / Kontakt